
A three bedroom semi detached bungalow having presented in excellent condition, situated in a quiet cul de sac within the Ascot Heath and Charters school catchment area. Is unfurnished and available from 1st November 2022
- THREE BEDROOMS
- LIVING ROOM
- FITTED KITCHEN
- SHOWER ROOM
- ENCLOSED REAR GARDEN
- GAS CENTRAL HEATING
- DOUBLE GLAZED WINDOWS
- GARAGE AND DRIVEWAY PARKING
| Price: | £1,600 |
| Address: | WHITELANDS DRIVE |
| City: | ASCOT |
| State: | BERKSHIRE |
| Zip Code: | SL5 8LR |
Additional Features
Home Summary
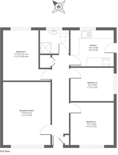
ACCOMMODATION:- ENTRANCE HALL: - Access to all rooms, radiator, airing cupboard. LIVING ROOM: - (14’10 x 11’3) Front aspect, double glazed window, feature fireplace, television point, radiator. KITCHEN: - (10’1 x 8’6) Rear aspect, double glazed window, comprising eye and base level units with work surface with inset single sink unit and drainer, built in oven and hob, fridge and freezer. BEDROOM 1: - (11’10 x 11’2) Rear aspect, double glazed window, radiator. BEDROOM 2: - (10’1 x 9’11) Front aspect, double glazed window, radiator. BEDROOM 3: - (10’1 x 7’11) Side aspect, double glazed window, radiator. SHOWER ROOM: - A suite comprising shower cubicle with power shower, pedestal wash hand basin, low level WC, part-tiled walls, towel rail, extractor fan. OUTSIDE: - To the front the garden open plan laid to lawn with flower borders and a pathway leading to the front door with driveway. To the rear, the garden is fully enclosed and on three levels, comprising an area of patio leading to lawn with flower and shrub borders, steps down to shed and garage back door. GARAGE: - With up and over doors, carport to the front and driveway for two/three cars LOCAL AUTHORITY:- Bracknell Forest Our terms are as follows; i) One month rent in advance ii) A deposit payable in advance equal to five weeks rent iii) A holding fee of £450.00 which will be returned as the first weeks rent of tenancy
Kitchen Summary
Living Room
Master Suite





