
Priced to sell: a well-presented three-bedroom house with a modernised kitchen, landscaped garden, wood flooring throughout, double-glazed windows and a garage. Ideally located between Bracknell Town Centre and Ascot High Street, within walking distance of Martins Heron train station. No onward chain. Sole agent.
- COVERED ENTRANCE PORCH
- ENTRANCE HALL
- LIVING ROOM
- DIVING ROOM
- KITCHEN
- THREE BEDROOMS
- BATHROOM
- ENCLOSED REAR GARGEN
- GARAGE IN BLOCK
| Price: | £390.000 |
| Address: | NORTH ROAD |
| City: | ASCOT |
| County: | BERKSHIRE |
| State: | BERKSHIRE |
| Zip Code: | SL5 8ED |
| Bedrooms: | 3 |
| Bathrooms: | 1 |
| Garage: | 1 |
Additional Features
Home Summary
Kitchen Summary
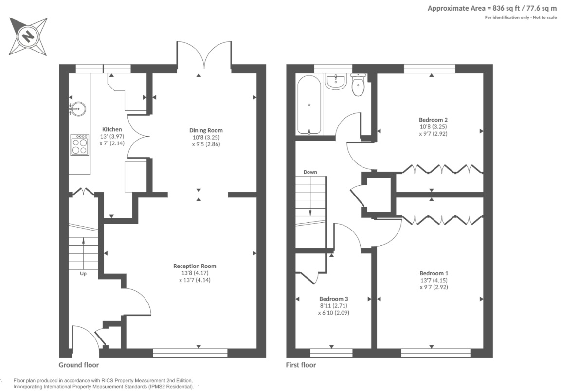
COVERED ENTRANCE PORCH:- Front door to:- ENTRANCE HALL: - Stairs to first floor, storage cupboard, door through to living room. LIVING ROOM:- (13’6 x 13’7):- Front aspect, double glazed window, radiator, TV point, open planned to:- DINING ROOM: - (10’8 x 9’5) Rear aspect, double glazed patio doors, access to:- KITCHEN: - (13’0 x 7’) A range of eye and base level units with work surfacing, single sink unit with drainer, built in oven and hob, plumbing and space for washing machine, space for fridge freezer, partly tiled walls, door to rear garden, double glazed window, newly fitted boiler. LANDING: - Access to bedrooms and loft space via ladder, cupboard. BEDROOM ONE (13’7 x 9’7): - Front aspect, double-glazed windows space for wardrobes, radiator. BEDROOM TWO: - (10’8 x 9’7): - Rear aspect, double glazed windows, radiator. BEDROOM THREE: - (8’11 x 6’10): - Front aspect, radiator, over stairs cupboard. BATHROOM: - Rear aspect, three-piece suite comprising low level WC, panel enclosed bath with independent shower, pedestal wash hand basin, tiled walls, heated towel rail and double-glazed window. OUTSIDE: - To the front: open planned laid to lawn, pathway to the front. To the rear there is a decking area to laid to lawn with flower borders enclosed by a panel fence rear gate giving access to the garage. GARAGE:- Single with up and over door. TENURE:- Freehold. LOCAL COUNCIL AUTHORITY:- Bracknell Forest Council
Living Room
Master Suite










