
A three bedroom detached bungalow in need of some updating, situated close to the Shepperton Mainline Station and High Street, in great catchment for the schools and is offered with no chain complications
- ENTRANCE HALL
- LIVING/DINING ROOM
- KITCHEN
- THREE BEDROOMS
- BATHROOM
- GARAGE
- ENCLOSED REAR GARDEN
- PARKING FOR FOUR CARS
| Price: | £600,000 |
| Address: | Gaston Way |
| City: | Shepperton |
| County: | Middlesex |
| Zip Code: | TW17 0ET |
| Bedrooms: | 3 |
| Bathrooms: | 1 |
Additional Features
Home Summary
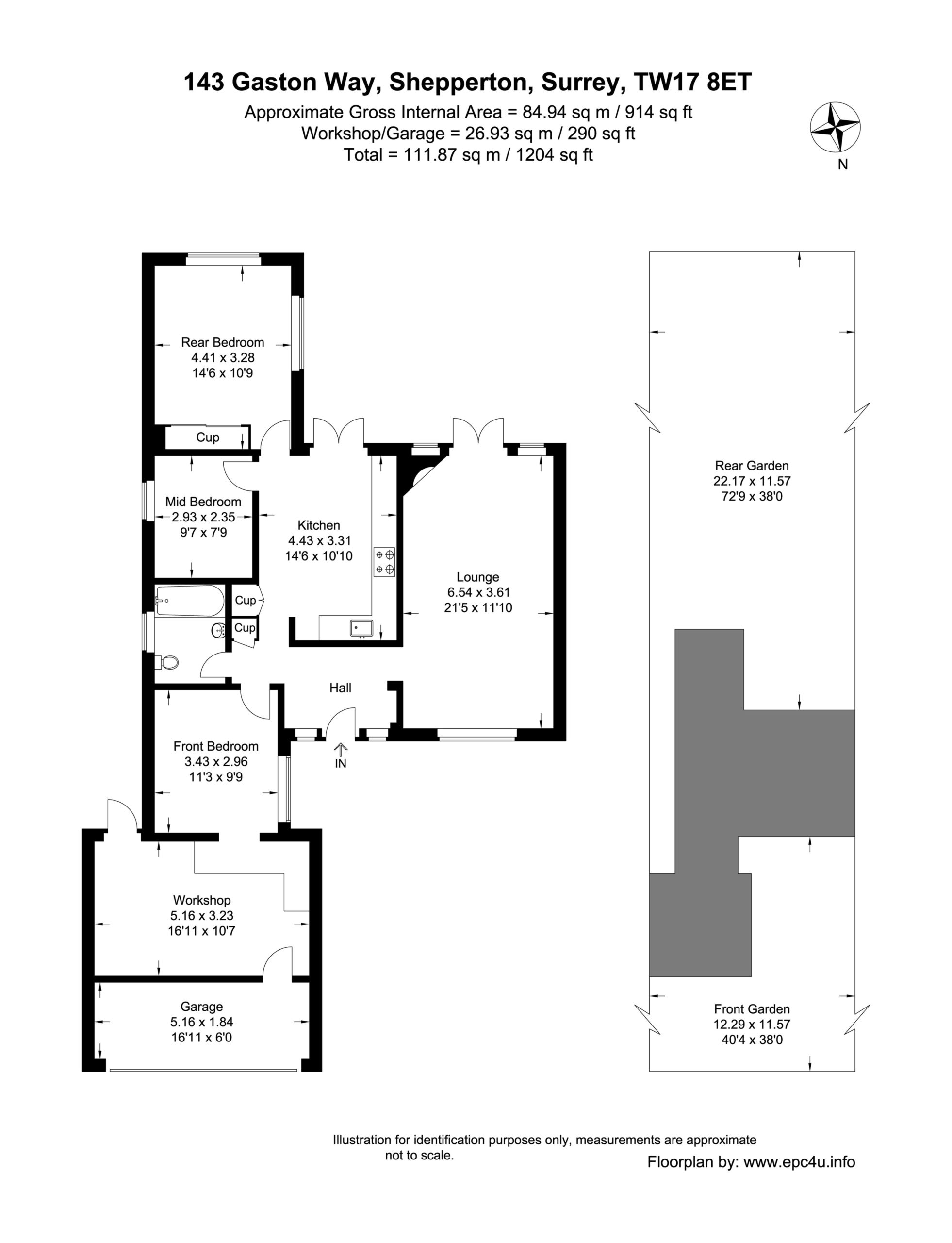
ACCOMMODATION: ENTRANCE HALL: - Front aspect, laminate wood flooring LIVING/DINING ROOM: (21’5 x 11’10) – Benefits from dual aspect with uPVC double glazed windows to the front, uPVC double glazed patio doors to the rear garden laminate flooring, with fully working feature fireplace, TV point KITCHEN: (14’6 x 10’10) Rear aspect, a fitted kitchen with white floor and wall units with roll top work surfacing, built in oven with electric oven and extractor fan above uPVC double glazed windows to rear FRONT BEDROOM: (11’3 X 9’9) – Front aspect, uPVC double glazed windows, radiator, dressing area REAR BEDROOM: (14’6 x 10’9) – Dual aspect, radiator, uPVC double glazed window, built in cupboard MID BEDROOM: (9’7 x 7’9) – Single aspect, radiator, uPVC double glazed window, BATHROOM: - A white suite comprising a low-level WC, pedestal wash hand basin and panel enclosed bath with power shower above, a heated towel rail, uPVC double glazed windows GARAGE:- A double garage which is currently partitioned into a storage area and lockable working room, with direct access through to the garden GARDEN: - To the front the driveway for four cars, with a pathway to the front door. To the rear the large garden south facing and fully enclosed by panel fencing and mature hedging getting plenty of natural light mainly laid to lawn with two patio areas.
Kitchen Summary
Living Room
Master Suite










